|
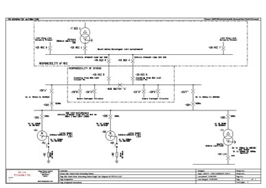
Shaw Power currently utilise AutoCad or PC-Schematic's electrical CAD software for design and drawing creation or updates required for items such as single-line diagrams, protection schematics, wiring diagrams etc. These can then be exported to .PDF if required or the native project files can be provided as necessary. An example of a typical single line diagram created for one of our customers is below:

Note: PC-Schematic is a specialised electrical and electronic CAD package that enables the circuit diagram to be integrated into an overall package consisting of parts lists, component lists, cable schedules etc. PC-Schematic is especially good for PLC or controller based applications. Use the contact us page to contact us with your requirements.
|